A home renovation doesn’t have to be a full teardown to change how a house looks and lives. This project in a westside Cleveland neighborhood is living proof. Our team helped reimagine the home’s exterior and entry experience with a series of thoughtful upgrades that added space, function and curb appeal.
From a new garage addition and an expanded front porch to a highly practical mudroom and a complete front elevation refresh, these improvements work together to create a more welcoming, cohesive design with practical functionality. The before-and-after photos tell the story best, showing how smart planning and intentional design can transform a home’s feel from the moment you pull into the driveway. To see more of this project, visit our portfolio.
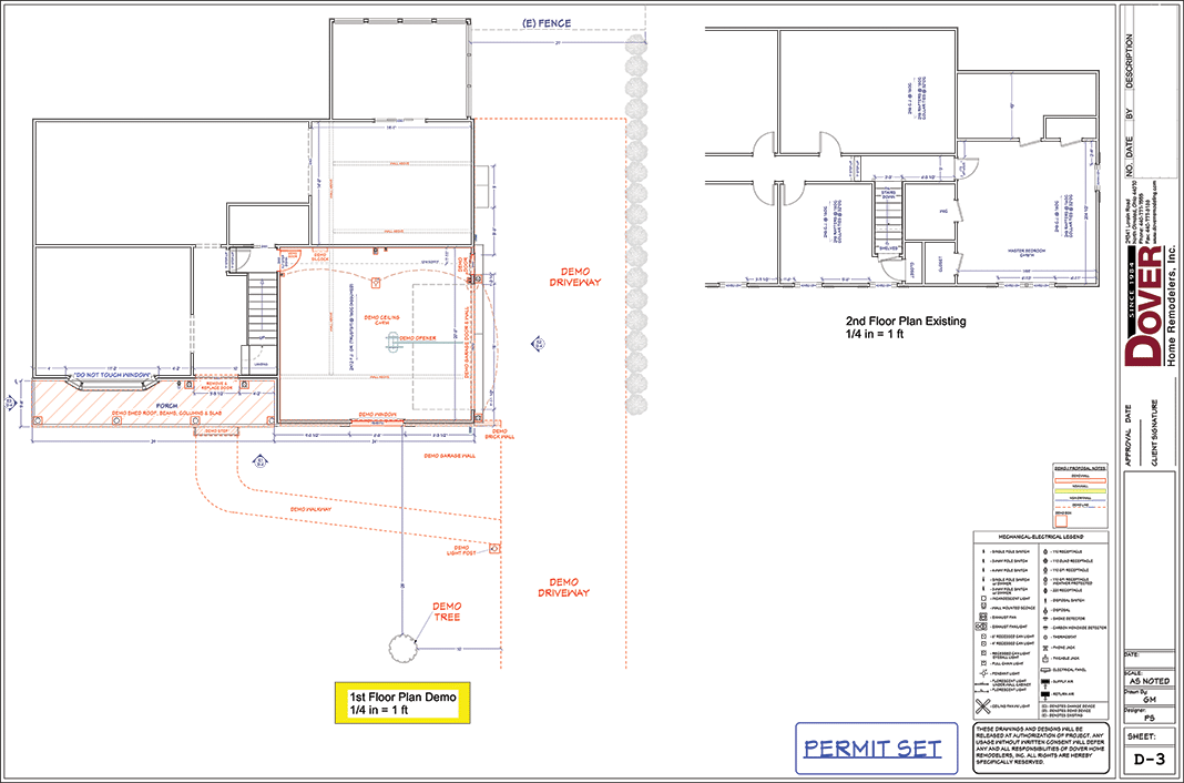
The home’s existing side-load garage wasn’t deep enough to accommodate the family’s full-size SUV. In addition to a larger garage, the homeowners wanted a mudroom to help organize everyday life, more living space on the front porch to enjoy and a complete refresh of the home’s outdated front façade. Here’s the blueprint detailing our design plan:
The New Garage: Bigger & Better
We changed the orientation of the new garage to a front-load, adding 4 feet in depth and 9 feet in width. This redesign expanded the garage from a two-car space to a 2.5-car garage with longer bays for oversized vehicles, plus extra storage and an exit door to the backyard.
An Expanded Front Porch + Elevation Refresh = Instant Curb Appeal
Because we bumped the roofline forward to gain the required depth for the new garage, we brought the home’s entire front elevation forward to the same point for a seamless look and finish that feels authentic. This added square footage dramatically increased livable space on the front porch (with enough room for a porch swing!) and afforded us the area we needed to create an eye-catching front entry.
For the entryway, we started by raising the pitch of the existing roof, then added a new double front door and finished with a barrel ceiling lined with wood beadboard stained a rich walnut. This feature is dramatic in size and contrast, which creates the home’s focal point.
Other exterior upgrades include painting the siding and brick (Alabaster, Sherwin-Williams), adding new shutters, installing new Pella® Lifestyle windows and pouring a new porch deck, driveway and walkways.
All-New Mudroom
Borrowing interior space from the previous garage, we built a much-needed mudroom that transitions foot traffic from the garage into the kitchen or down to the basement. The functional mudroom includes custom cabinetry featuring cubbies, bench seating, shoe columns and hidden storage for gear and cleaning supplies. A beverage fridge for on-the-go convenience is tucked under a maple wood countertop stained to match the benches and pull in the wood grain from the adjoining kitchen. Luxury vinyl tile (12”x 24” Mannington ADURA MAX Meridian in Stucco) is installed in a herringbone pattern using glue and grout to mimic ceramic tile, but with the rugged durability and value of LVT.
A Refreshed Primary Bathroom
An additional interior upgrade included the primary bathroom, which was outdated and dreary, with an unused bathtub that took up too much space. The homeowners wanted a bathroom with a more contemporary feel and function.
To keep costs contained, we worked within the room’s original footprint, removing the bathtub and refreshing the existing shower with new tile. On the shower walls: Hamilton Parker, Carmen in Seville Snow, gloss Finish. On the shower floor: Anatolia Soho hexagon in Soft Sage, matte finish. A custom bench seat, niche and 3/8″ clear glass enclosure complete the shower. Delta Broderick® 14 Series fixtures in matte black finish were used throughout to tie everything together.
A custom 72” double vanity with Kohler® Caxton undermount sinks left space for the homeowners to source a piece of furniture to complete their vision for the extra space. New luxury vinyl tile flooring (Mannington, ADURA Flex, Basilica in Pillar) finishes the bathroom, creating a lighter, brighter space that feels refreshed.
A Feel-Good Finish
When the homeowners decided that they needed a larger garage, the rest of the practical upgrades followed naturally. Guided by the homeowners’ wish list and personal style, our team at Dover brought their vision to life.
I hope you’ve enjoyed the behind-the-scenes look. If you have questions about this remodeling project, please reach out.
Patti Saracusa






